EDG Architecture + Engineering

58 West 40th St, 5th Fl. New York, NY, 10018

(212) 683-5680

info@edgnyc.com

Lenox Avenue Building Addition

Building Enlargements

Harlem

2018 Unbuilt

  • Overview
  • Approach
  • Impact
  • Related

Efficient Solutions For Vertical Expansion

All Projects

Lenox Avenue Building Addition

Efficient Solutions For Vertical Expansion

OVERVIEW

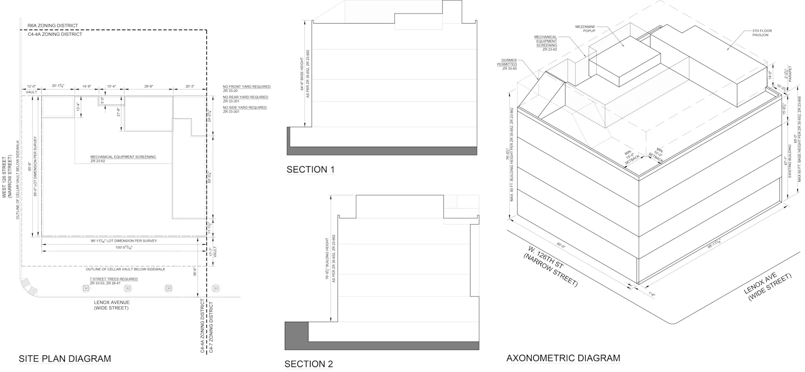
The owners of a three-story building on Lenox Avenue in Harlem turned to EDG Architecture + Engineering for expansion after our previous architectural and structural work for the Red Rooster Restaurant and Ginny’s Supper Club at the same address.

Composed of brick and cast iron and set on pile foundations, expanding this distinctive building created an engineering puzzle that touched on elements from architectural design to zoning analysis. The client wanted to explore the potential for adding up to three stories or consider replacing the existing structure entirely. Our team completed the work efficiently to ensure minimal disruption to the restaurant, which remained open during construction for minimal disturbance or loss of revenue.

BY THE NUMBERS

  • Project Value $5,000,000 - $10,000,000
  • Addition Area 9,000 Square Feet
Approach

APPROACH

Approach

Our team began by assessing the viability of adding to the existing building to avoid tearing it down and starting anew. Our careful approach allowed us to preserve the structure while ensuring the new addition maintained the building’s character. We conducted a feasibility study for structural analysis and architectural design, including code and zoning compliance. The vertical addition we designed worked within the constraints of the current building, and we ensured our foundation probes were minimally invasive to the restaurant in the cellar. Our design relied primarily on the existing structural systems, and these tactical solutions allowed ownership to save money while delivering on their vision for the space.

Approach

IMPACT

The Lenox Avenue Addition maximized the building’s usable space while allowing the ground-floor restaurant to remain operational.

By reinforcing only one line of columns, we facilitated a seamless vertical expansion that met the client’s goals with minimal disruption. Our work added 9,000 square feet to the building, significantly enhancing the value for ownership. Our team’s ability to efficiently manage complex urban additions provided our client with a structurally sound and cost-effective solution for expanding their property.

Lenox Avenue Building Addition

Efficient Solutions For Vertical Expansion

Approach


Please rotate your device

For the best experience, turn
your phone upright.